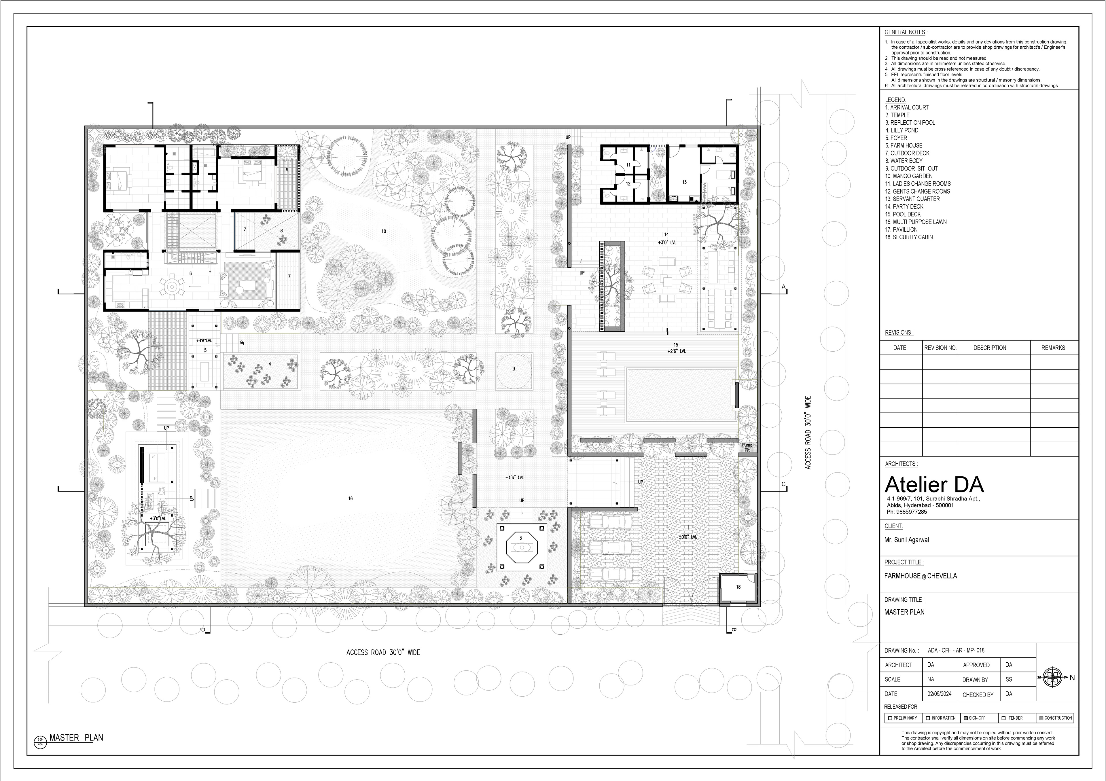
Farm House @ Chevella
Typology -  Farmhouse/ Hospitality
Location - Chevella, Hyderabad 
Year: Ongoing 2023
Gross Built Area:  1.25 Acres.
Lead Architects:   Ar. Divyansh Agarwal 
Site Supervisor:   Md. Jameel
Site Sections
Site Sections
Farm House Sections
Farm House Sections
Staircase Detail
Staircase Detail

You may also like

Back to Top